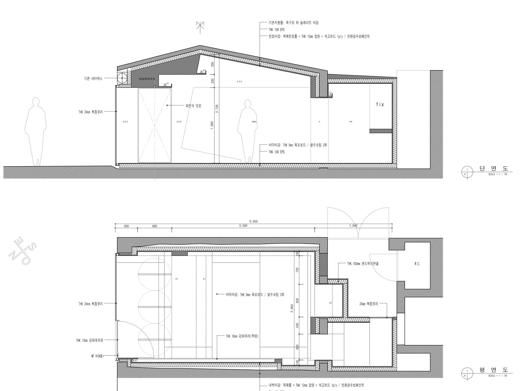
Project               근린생활시설 리모델링
Client                 Private
Location             Mullae, Seoul
Year                   2015
Status                Completed
Program             Office
Size                   21m² (Building)
PROJECTS            ART WORKS            FURNITURE            ABOUT        Job offer!(closed)
Copyright © 2020 건축사사무소 에스에프랩